ソーラーシステム季節の働き

■冬のソーラーシステムの特徴
太陽熱を利用し、エネルギー使用を最小限に抑えた環境に優しいシステムです。太陽で温められた空気を外部から取り込むので、温熱環境を向上させながら、同時に新鮮な空気を室内に循環させます。

■夏の温熱環境と通風計画
屋根に高い断熱性能を持たせ、夏の天井からの輻射熱を最小限にしています。晴れた夜間は、放射冷却による屋外の冷えた空気を屋内に取り入れ、涼をとることが可能です。オプションとして、太陽熱からお湯を作るシステムも設置可能です。

間取りの特徴

■一般的な住宅
内部の壁に耐力を期待するので、小部屋が多くなります。部屋同士のつながりがスムーズでなく、それぞれが分離した間取りになります。部屋を移動した時不快な温度差を感じます。
■ソーラーシステムの住宅
ソーラーシステムは、室内全体の熱環境を均一に向上させます。また、木造ドミノシステムにより、壁のない伸びやかな間取りも可能にしました。これら2つのシステムにより、広々とした快適な室内を実現しました。

長寿命住宅

木造ドミノシステムは、スケルトン(構造体:柱・梁など)とインフィル(内装・設備)を分離しています。ですから、老朽化した設備の交換・メンテナンス、新しい設備への交換が、一般的な住宅よりも容易にできます。また、家族構成が2世帯に変化しても、必要な設備を後から付加できますので、対応が可能です。

住み続けても生活スタイルに合った間取りが可能であり、快適で長寿命の住宅を実現しています。

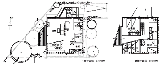
平面図

提案時の間取り

1階: 居間、食堂、台所が一体的になった広々と開放感のあるスペース
2階: プライバシーを保った個室群
快適な外部環境

緑豊かな街並みを連続させ、環境に優しく、快適に住む事が出来る住環境を形成します。
また、独自の全国気象データによる東村山の風配図から、論理的な通風計画をしています。
夏は、室内に快適な風を呼び込みます。

モデルハウス


現在、東村山本町工事に先駆けて、モデルハウスを建築中です。
木造ドミノシステムは、さまざまな敷地形状に対応できます。
このモデルハウスでは、台形の敷地に正方形の住宅を計画しています。
室内部に現れる柱は中央一本のみで、自由な内部空間を実現しています。

木造ドミノグループ

■お問い合わせ先  
相羽建設(株)    042−395−4181(担当:迎川)
   ホームページ
   https://www.aibaeco.co.jp
   
■参加事業者  
・相羽建設(株) ・(株)オーエム研究所 ・(株)オーエムソーラー協会
 

サイト内の宅地図、建物図、各イメージについては変更の可能性が有ります。

TOP > 住宅 > 木造ドミノ